Willkommen in Ihrem zukünftigen Zuhause, einem charmanten freistehenden Fachwerk-Einfamilienhaus, das eine einzigartige Kombination aus Tradition und zeitgenössischem Wohnkomfort bietet. Dieses Objekt bietet nicht nur eine solide Basis, sondern auch enormes Potenzial, Ihre eigenen Träume und Vorstellungen durch weitere Modernisierungen zu verwirklichen.
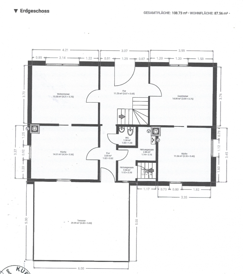
Raumaufteilung:
+ Die sieben geräumigen Zimmer bieten vielfältige Nutzungsmöglichkeiten, darunter Schlafzimmer, Wohnzimmer, Büro oder Gästezimmer.
+ Die Küche kann nach Ihren Wünschen gestaltet und modernisiert werden, um Ihre kulinarischen Kreationen zu verwirklichen.
+ Das Duschbad im Obergeschoss kann durch Ihre individuellen Vorstellungen zum Traumbad werden.
+ Der Dachboden stellt eine zusätzliche Fläche dar, die Ihnen Raum für Erweiterungen oder zusätzlichen Stauraum bietet.
+ Der teilunterkellerte Bereich und der Hauswirtschaftsraum bieten Platz für Ihre persönlichen Bedürfnisse und Anforderungen.
Außenbereich:
+ Die Terrasse ist eine ideale Kulisse für gemütliche Stunden im Freien und kann nach Ihren Wünschen gestaltet werden.
+ Die drei Garagen bieten ausreichend Raum für Fahrzeuge und zusätzlichen Stauraum.
Renovierungen:
+ Im Zeitraum 2007-2010 wurden bereits wichtige Modernisierungen durchgeführt:
++ Neueindeckung des Daches mit neuen Pfannen
++ Dachisolierung
++ neue Hauseingangstüre
++ Außenwanddämmung
++ neue Fenster und elektrische Rollläden
Modernisierungspotenzial:
Die vorhandene Elektrik stammt noch aus dem Baujahr des Hauses und bietet die Möglichkeit, sie nach Ihren eigenen Wünschen und Anforderungen zu modernisieren. Dieses Fachwerk-Einfamilienhaus bietet eine solide Basis und eröffnet Ihnen die Freiheit, Ihre persönlichen Wohnträume zu verwirklichen.
Hier haben Sie die Chance, Ihr Traumhaus nach eigenen Vorstellungen zu gestalten und anzupassen. Erkennen Sie das Potenzial dieses Objektes und gestalten Sie es zu Ihrem perfekten Zuhause in Mettmann-Metzkausen.
Vereinbaren Sie noch heute einen Besichtigungstermin, um die vielfältigen Möglichkeiten dieses einzigartigen Hauses zu entdecken und Ihre kreativen Ideen zu realisieren!




