Willkommen in Ihrem zukünftigen Zuhause! Dieses charmante, freistehende Einfamilienhaus aus dem Jahr 1986 vereint großzügiges Wohnen, eine behagliche Atmosphäre und eine hervorragende Lage – ideal für Familien oder Paare, die sich Raum zur Entfaltung und ein Zuhause in einer der gefragtesten Wohngegenden der Region wünschen.
Das Haus wurde in Holz-Fertigbauweise errichtet und ruht auf einem soliden, massiv gebauten Keller – eine Kombination aus Stabilität und natürlichem Wohnklima.
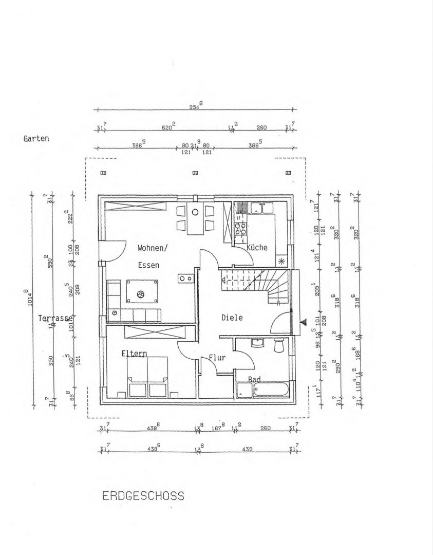
Auf einer Wohnfläche von ca. 143,48 m² überzeugt das Haus mit einem durchdachten und funktionalen Raumkonzept über zwei Etagen. Schon beim Eintreten empfängt Sie ein großzügiger, heller Eingangsbereich, der sofort ein Gefühl von Offenheit und Wärme vermittelt. Von hier aus gelangen Sie in alle weiteren Räumlichkeiten des Hauses – darunter auch das Wohnzimmer mit direktem Zugang zur sonnigen Terrasse und dem liebevoll gestalteten Garten – ein echtes Highlight für entspannte Sommertage, gemütliche Abende oder gesellige Stunden mit Familie und Freunden.
Die angrenzende Küche bietet ausreichend Platz für gemeinsames Kochen und ist funktional geschnitten. Ebenfalls im Erdgeschoss befinden sich ein Badezimmer mit Badewanne und Dusche sowie ein weites Zimmer – ideal als Kinderzimmer, Gästezimmer oder Büro.
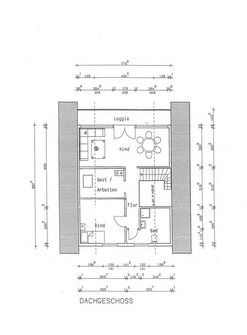
Das Obergeschoss überzeugt mit weiteren Rückzugsorten: Hier befinden sich ein gemütliches Kinderzimmer, ein zweites Badezimmer mit Dusche sowie das Hauptschlafzimmer mit Zugang zum überdachten Balkon – perfekt, um den Tag mit einem Kaffee in der Morgensonne zu beginnen oder entspannt ausklingen zu lassen.
Im Keller stehen Ihnen neben einem Waschraum und dem Technikraum mit Heizung und Warmwasserspeicher auch eine eigene Sauna zur Verfügung – ein besonderes Extra, das für entspannte Wellnessmomente in den eigenen vier Wänden sorgt.
Das ca. 508 m² große Grundstück ist ein wahres Gartenparadies: gepflegt, großzügig und mit viel Potenzial für Hobbygärtner, Spielbereiche für Kinder oder einfach zum Genießen. Ein praktischer Gartenschuppen bietet zusätzlichen Stauraum. Eine Garage rundet das Angebot ab und schützt Ihr Fahrzeug bei Wind und Wetter.
Die Immobilie ist derzeit vermietet.
Das Einfamilienhaus befindet sich in einem altersgemäßen Zustand. Die Heizung wurde im Jahr 2021 erneuert, was energetisch ein klarer Vorteil ist. Um das volle Potenzial der Immobilie auszuschöpfen, sind jedoch Renovierungsmaßnahmen notwendig – insbesondere im Innenbereich bietet sich hier die Möglichkeit, individuelle Vorstellungen umzusetzen und das Haus ganz nach eigenen Wünschen zu gestalten.
Fazit: Dieses Einfamilienhaus vereint großzügige Wohnflächen, liebevolle Details und eine attraktive Lage – ein Ort, an dem Sie ankommen, aufatmen und bleiben möchten.




