Dieses historische Fachwerkhaus aus den frühen 1900er-Jahren ist ein Zuhause für Menschen, die das Besondere suchen. Hier erwartet Sie kein gewöhnliches Wohnhaus, sondern ein atmosphärisches Liebhaberobjekt mit unverwechselbarem Charakter, das seinen eigenen Rhythmus, seine eigene Geschichte und seinen ganz eigenen Charme bewahrt hat. Man spürt auf Anhieb, dass dieses Haus nicht für die breite Masse bestimmt ist, sondern für Menschen, die genau diese Individualität schätzen.
Das Grundstück umfasst 5.699 m². Davon liegen ca. 4.000 m² als steile, nicht begehbare Waldfläche im Landschaftsschutzgebiet. Real nutzbar sind daher etwa 1.500 m². Trotz der großen Gesamtfläche beträgt die Grundsteuer nur rund 50 € im Monat, sodass keine hohen laufenden Kosten entstehen.
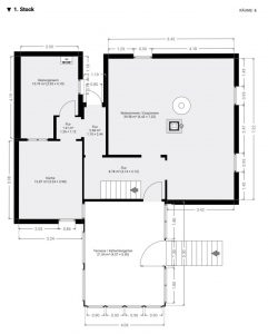
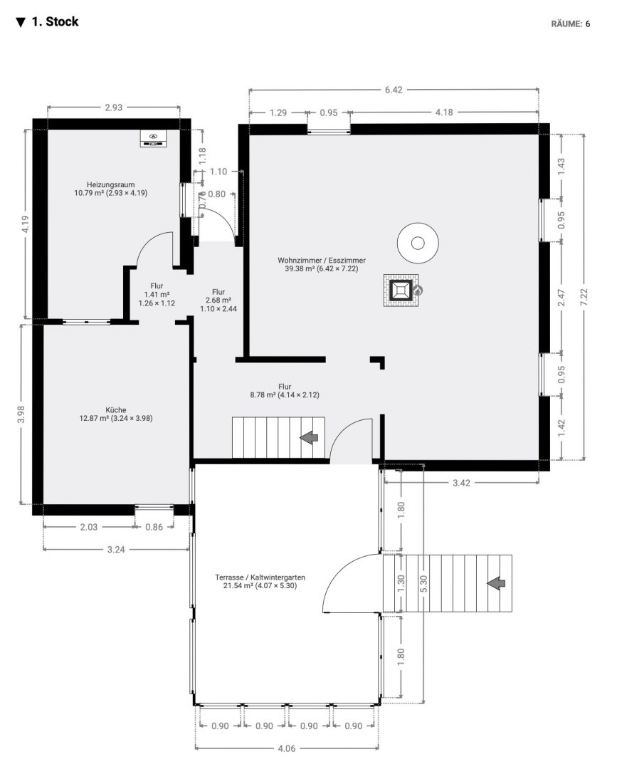
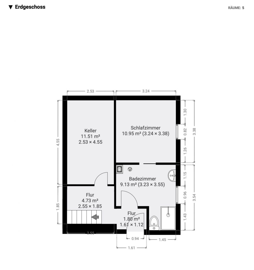
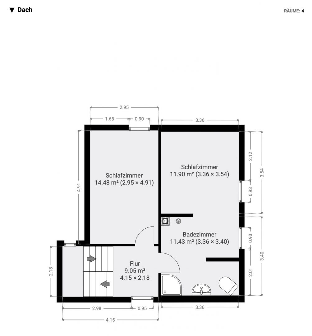
Das Einfamilienhaus verfügt über vier Zimmer, zwei Bäder und einen lichtdurchfluteten Wintergarten, der den Blick in die grüne Umgebung öffnet und dem Haus zu jeder Jahreszeit eine lebendige Atmosphäre verleiht. Die sichtbaren Holzbalken, die traditionellen Raumstrukturen und die historische Ausstrahlung machen jeden Bereich zu einem besonderen Ort. Das Haus wurde längere Zeit nicht modernisiert und befindet sich daher in einem renovierungsbedürftigen Zustand. Zugleich eröffnet es vielfältige Möglichkeiten, eigene Ideen und Vorstellungen einzubringen – ein Ort mit viel Potenzial für Menschen mit Kreativität, handwerklichem Geschick oder dem Wunsch nach einem ganz individuellen Zuhause. Das Haus steht nicht unter Denkmalschutz und kann daher nach eigenen Vorstellungen saniert und modernisiert werden.
Beheizt wird das Haus durch eine Gasheizung aus dem Jahr 2023. Der dafür benötigte Gastank befindet sich außerhalb des Hauses, sodass die Optik im Innenbereich nicht beeinträchtigt wird und gleichzeitig eine zuverlässige, effiziente Versorgung gesichert ist. Der Eigentümer lebt derzeit noch im Haus, sodass ein Einzug nach Absprache möglich wäre.
Die Lage im Morsbachtal, einer der beliebtesten und naturbetontesten Gegenden der Region, unterstreicht den außergewöhnlichen Charakter dieser Immobilie. Die Umgebung ist geprägt von Wäldern, Wiesen und viel Ruhe – ein Umfeld, das nicht nur Naturliebhaber begeistert, sondern auch Menschen, die Raum für besondere Hobbys benötigen. Dank der grünen und großzügigen Umgebung eignet sich das Anwesen besonders gut für Tierfreunde – etwa für Menschen, die Hunde halten, züchten oder artgerecht beschäftigen möchten. Das Haus bietet Möglichkeiten, die über das klassische Wohnen hinausgehen.
Dieses Fachwerkhaus trägt den Charme vergangener Jahrzehnte in sich – und sucht nun jemanden, der seine Geschichte mit Liebe und Ideen weiterführt. Wer Freude daran hat, etwas Besonderes zu bewahren und mit neuem Leben zu füllen, entdeckt hier eine Gelegenheit, die man nur selten findet.




